|
|
 |
リフォーム・リノベーション |
 |
 |
賃貸物件8 |
| 招きたくなる部屋『WELCOME』テーマに。店舗ライクな仕上げでかっこ良く仕上げた。家の中にBAR/漫喫/ラウンジ‥いろいろ作れちゃいます。 |
 |
賃貸物件7 |
キッチンを部屋の真ん中に位置し、お母さんが主役の間取を。
家事動線がよく、どんなインテリアにも合わせやすい空間に。 |
 |
賃貸物件6 |
室内に山小屋がある部屋。山小屋には水廻りと収納をまとめた。
山小屋にはロフトもありよじ登る事も出来る。大人の秘密基地が裏テーマ。 |
 |
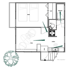
賃貸物件5 |
もともとの設備や造作を生かし、低コストに押えつつ味のある空間に。
窓の外にある木が、さながらツリーハウスにいるような気分にさせてくれる。 |
|